分譲住宅
郡山市御前南一丁目分譲住宅№6
2024.10.15
***万円
- 所在地 郡山市御前南一丁目166番7
- アクセス JR東北本線郡山駅(西口)徒歩約77分御前 徒歩約9分
- 学区 朝日が丘小学校 / 郡山第七中学校
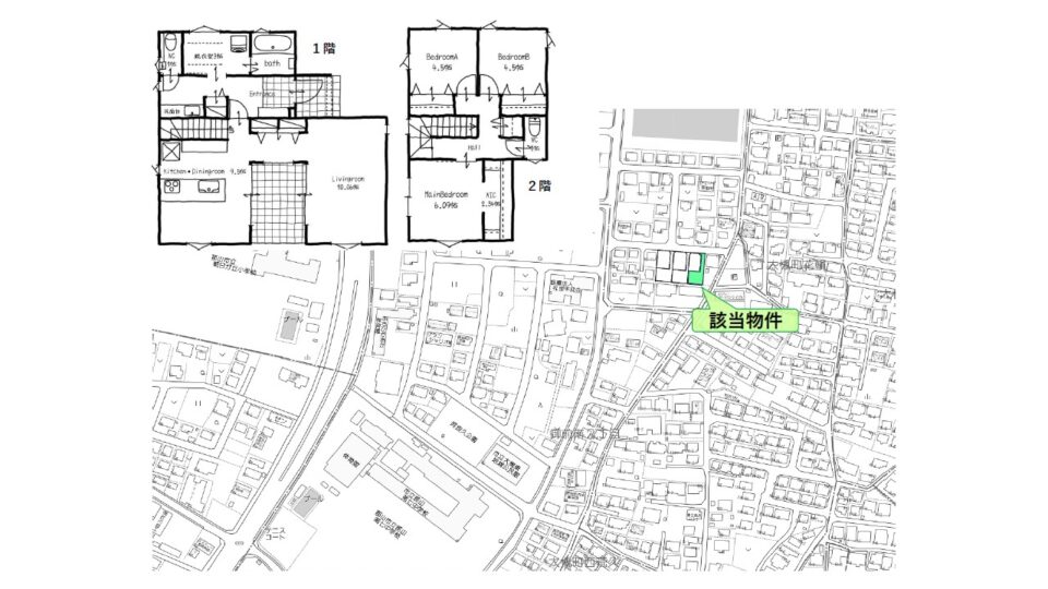
- 土地面積 208.77㎡(63.15坪)
- 建物面積 208.77㎡
- 間取り 3LDK(洋6.09/洋4.5×2/LDK19.56帖)
物件写真
備考
◇太陽光発電4kw搭載 ◇エアコン2台 ◇設備保証10年
周辺環境・MAP
この物件について、
もっと知りたい方はこちら
お電話でのお問い合わせ
0120-38-7117
受付時間 9:00〜18:00
物件情報詳細
| 所在地 | 郡山市御前南一丁目166番7 | ||
|---|---|---|---|
| 交通 | JR東北本線郡山駅(西口)徒歩約77分御前 徒歩約9分 | ||
| 建物面積 | 208.77㎡ | ||
| 土地面積 | 208.77㎡(63.15坪) | 都市計画 | 市街化区域 |
| 土地権利 | 所有権 | 地目 | 宅地 |
| 用途地域 | 第1種低層住居専用地域 | 建ぺい / 容積 | 50% / 100% |
| 防火指定 | 法22条地域 | ||
| 床面積 | 106.77㎡(32.29坪) | ||
| 間取り | 3LDK(洋6.09/洋4.5×2/LDK19.56帖) | ||
| 建築年月日 | 2024年4月完成予定 | ||
| 建築確認番号 | 第R05確認建築BHC中支0818号 | ||
| 学区 | 朝日が丘小学校 / 郡山第七中学校 | ||
| 設備 | 水道: 公営電気: 東北電力排水: 合併浄化槽雨水: 側溝 | ||
| 道路種類 / 接道 | 公道北側 6m | ||
| 現況 | 建築中 | 引渡し | 相談 |
| 売主、広告主の名称又は商号 | アトラスハウス株式会社 | 売主、広告主の事務所の所在地 | 郡山市長者一丁目7番17号 |
| 売主、広告主の事務所電話番号 | 024-983-1631 | 宅建業法による免許番号 | 福島県知事(3)第2964号 |
| 取引態様 | 売主 | ||
| 取引条件の有効期限 | 2024.12.30 | 次回更新予定日 | 2024.11.28 |